EDIFÍCIO ALBA
2022
Posicionado olhando para três ruas muito distintas entre si, o edifício Alba é implementado apropriando-se do formato triangular do terreno, criando um espaço que, ao mesmo tempo em que volta para si próprio – compartilhando entre os moradores um espaço comum de piscina, gramado e salões para diferentes usos – ele também olha para os arredores por meio de suas extensas janelas, relacionando-se com o entorno do bairro do Jardim das Bandeiras.
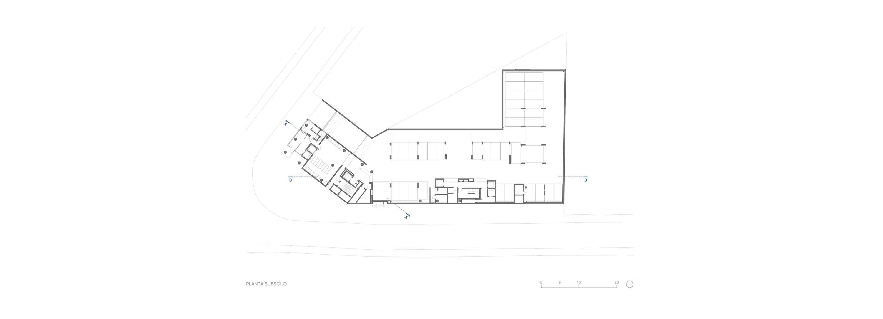
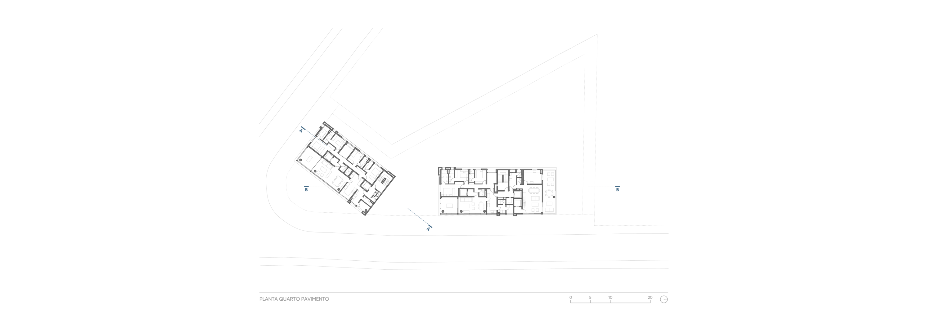
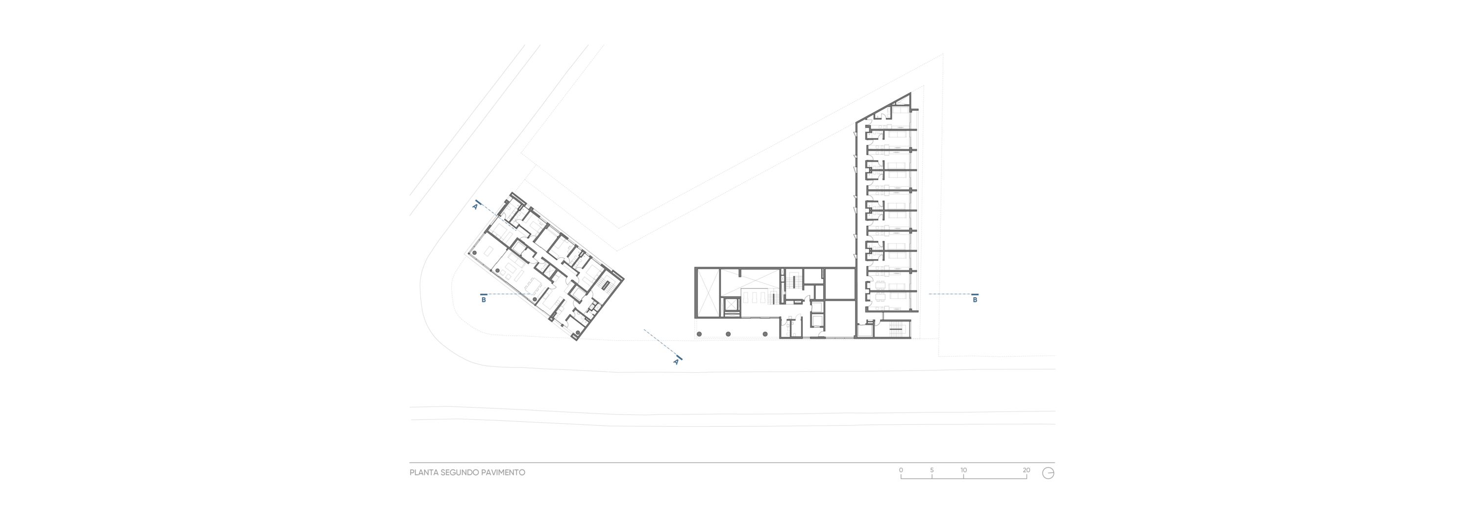
Como resposta ao coeficiente de aproveitamento e o desnível do terreno, nasce uma dissociação de volumetria que, dividida entre embasamento e torres, guarda nos seus primeiros pisos um sobresolo de garagem posicionando as áreas comuns em um térreo elevado. Mais acima e descoladas deste bloco, ficam as unidades de habitação, majoritariamente orientadas para o nascer do sol e vistas privilegiadas do skyline da cidade.
Dentre uma variação de cinco tipologias, os apartamentos oferecem flexibilidade de layout através de cômodos espaçosos e concentração dos pilares nas extremidades. Inspirados na arquitetura modernista de Higienópolis, os caixilhos piso-teto distribuem luz e ventilação natural.
A terceira torre, consideravelmente menor que as outras e destinada aos apartamentos duplex, possui 40 unidades e, aberta para a rua Heitor Penteado, ela possui acesso exclusivo, separando-se do primeiro condomínio.












Localização
Vila Nova Conceição
Início do projeto
2017
Entrega da obra
2022
Área terreno
2.406,87 m²
Área construída
19.274,30 m²
Fotos
Nelson Kon e Pedro Mascaro (drone)
Autor
Gui Mattos
Arquiteto responsável
Leonardo Chen
Equipe de arquitetura
Beatriz Santos
Bruna Pogliessi
Larissa Teixeira
Laura Bigliassi
Marcos Bresser
Mariana Caires
Thiago maurelio
Arquiteta interiores responsável
Fernanda Alencar
Equipe de interiores
Camila Ripani
Luciana Rangel
Incorporação
Idea!Zarvos
Execução da obra
Lock
Estrutura
Werebe Mordo Engenheiros Associados
Fundações
Portella Alarcon Engenheiros Assiciados
Luminotécnico
Office Lux, Estúdio Mena
Paisagismo
Rodrigo Oliveira Paisagismo
Comunicação Visual
Colírio
Instalações Hidráulicas e Elétricas
Projetar
Climatização
Willem Scheepmaker e Associados
Esquadrias
P. Martins Engenharia
Impermeabilização
Proassp Assessoria e Projetos
Acessibilidade
Pimenta Associados
Acústica
Harmonia
Ancoragem
PB Soluções
Automação e Segurança
Studiolo Engenharia
Vedação e Fachada
Toten
Irrigação
Regatec
Operação Predial
Geiah
Gerenciamento de Projetos
Dox