CASA VILA MADALENA

2022

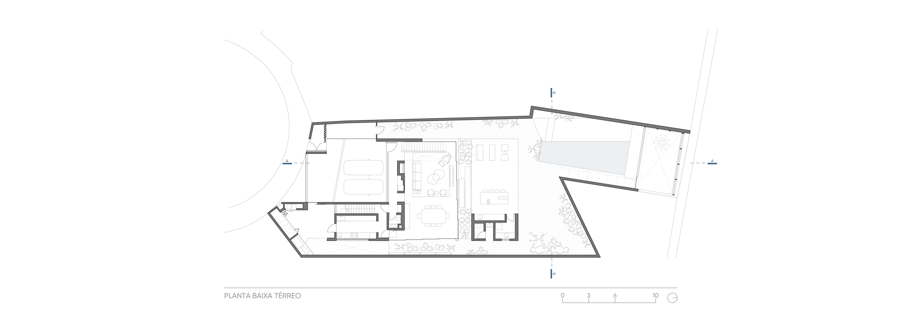
Situada em um terreno de contornos irregulares, a casa na Vila Madalena emerge como um monólito de concreto, que se desfaz à medida que se relaciona com o lote. No pavimento superior, aberturas estratégicas servem aos quartos, tanto na frente quanto nos fundos. No térreo, um movimento ousado da estrutura balanceia a edificação em duas direções, tudo ancorado por uma escada/pilar que transfere, de forma precisa, a carga ao solo.

Ao explorar seu interior, a madeira se revela, adornando paredes e tetos. Este teto, ocasionalmente, brilha com luz proveniente de pérgolas ou clarabóias. No espaço do lote, a casa se desdobra: base, sala de estar, varanda e áreas de descanso.

Como numa brincadeira com a rigidez do concreto e o ensaio de uma área social muito integrada, uma das fachadas laterais desce em uma diagonal rumo ao piso – uma tentativa de um delicado gesto – que na verdade esconde uma fundação com características muito específicas, exigidas para suportar a carga do pavimento superior. Para manter a luminosidade e proteger a sala de estar da chuva ou vento, painéis de u-glass foram posicionados em forma negativa ao concreto.

Concebida para uma jovem família, ela surpreende em tamanho, aproveitando do declive para estruturar três níveis de uso: área social e de serviços na cota de acesso, escritório, academia e brinquedoteca na cota mais baixa e, por fim, dormitórios no primeiro andar, oferecendo vista para a copa das árvores e privacidade.

Aparentemente sóbria em seu exterior e de uma certa essência brutalista, internamente ela é abraçada pela madeira, que marca presença em toda a área social, e se dilui, aos poucos, para alguns elementos nos dormitórios e áreas mais reservadas.

Localização
Vila Madalena
Entrega da obra
2022
Área terreno
508,15 m2
Área construída
796,21 m2 
 

Autor
Gui Mattos
Arquiteto responsável
José Rocha
Arquiteta responsável
Fernanda Denser
Equipe de arquitetura
Isabella Rodrigues
Jaqueline Milan
Victor Muniz
Equipe de interiores
Camila Ripani
Interiores Arquitetura
Gui Mattos
Fotos
Lela Leme

Luminotécnica
Foco luz & desenho
Paisagismo
Embyá paisagens & ecossistemas
Estrutura de concreto
Stec do Brasil
Fundações
MGA Solos 
Instalações hidráulicas
IBR Engenharia
Instalações elétricas
IBR Engenharia
Climatização
LogiProject


Áudio e vídeo
Oguri Tecnologia Integrada
Automação
Oguri Tecnologia Integrada
Impermeabilização
PROASSP
Esquadrias
Unibox
U-GLASS: C.Glass
Marcenaria
MC MOVELARIA 
Marmoraria
Di Mármore
Gerenciamento de obra
Cimenge
Construção Genera
Alle Engenharia

 

 

 

CONTEÚDOS RELACIONADOS