Casa em Guaecá
2018
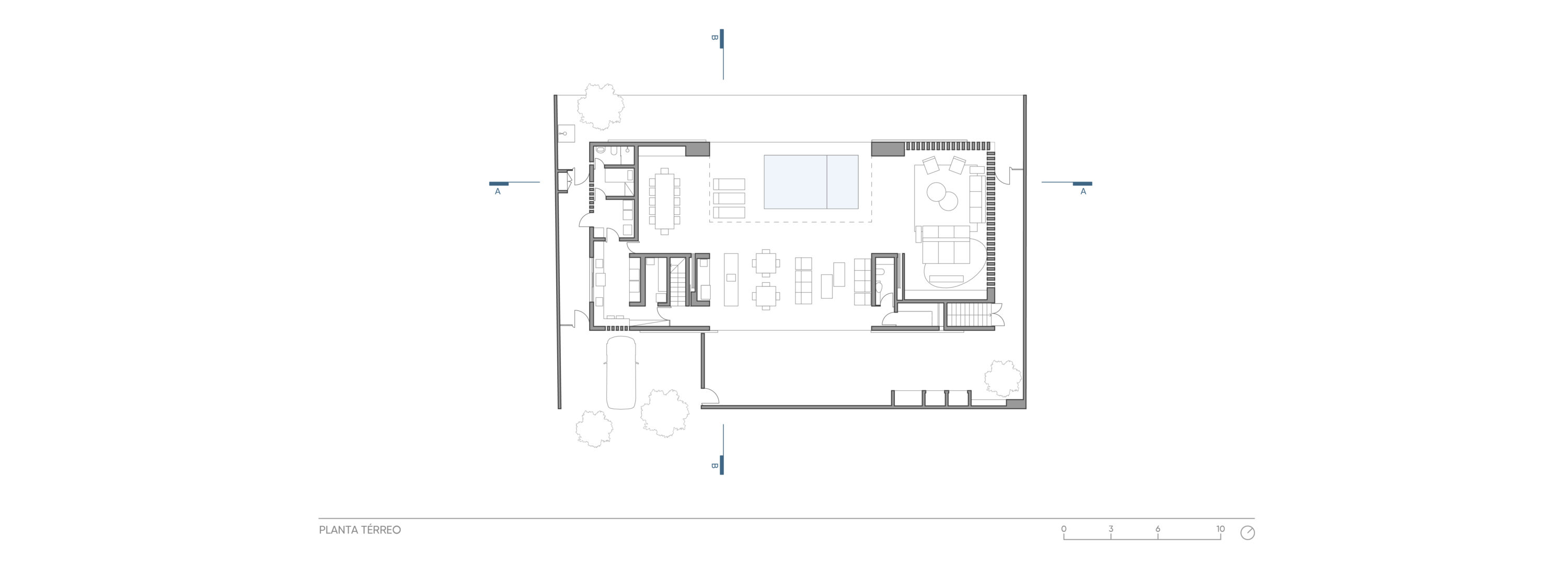
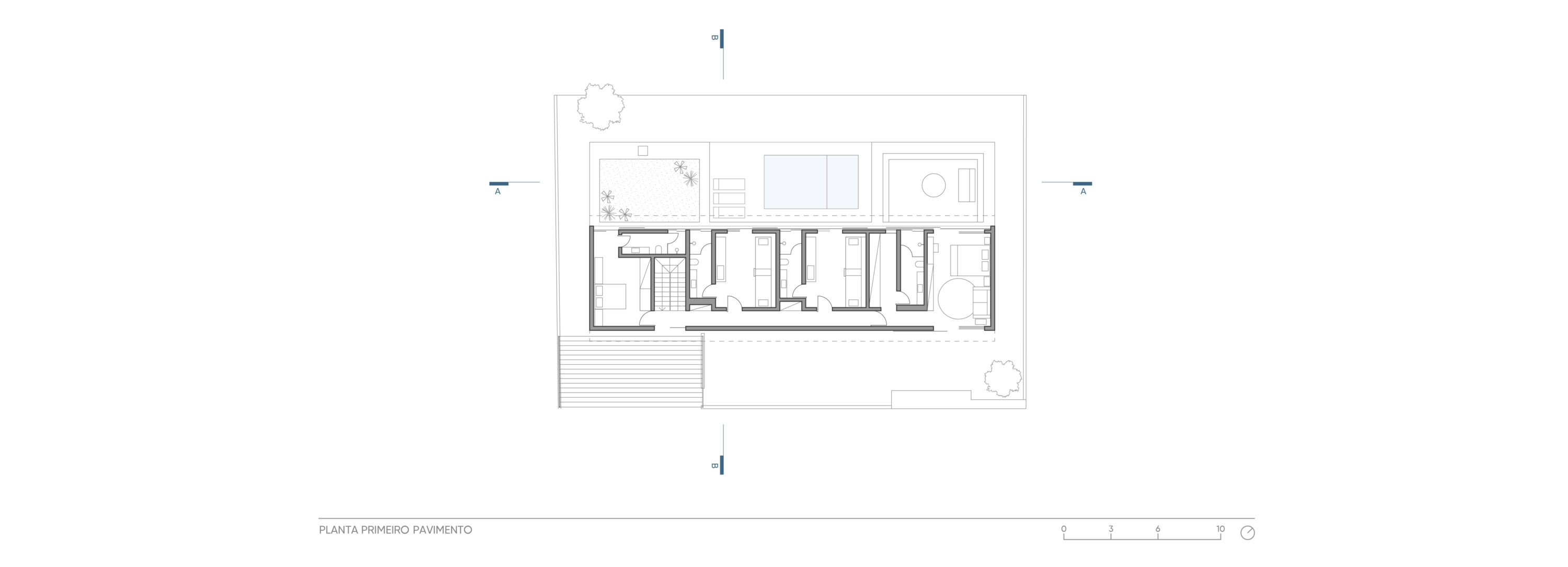
Localizada dentro de um condomínio e entre duas vias de acesso, uma para os veículos e outra para pedestres, a casa-varanda de implantação ”U” se abre discretamente para o gramado e palmeiras, enquadrando-os e colocando em seu centro uma piscina. Protagonizando a área social no térreo, o projeto organiza os dormitórios na lâmina do pavimento superior.
Ainda que aberta para a via de pedestres, a casa busca privacidade por conta do constante fluxo de moradores do condomínio que por ali caminham e, através de uma vegetação alta e seteiras nas faces leste e noroeste, a residência se fecha sutilmente, trazendo uma luz difusa e interessante para a sala de estar.
Em uma triangulação de uso das áreas do térreo, todos os espaços são integrados e estimulam uma convivência próxima, além da busca do aconchego por meio de cores calmas e materiais que conversam com o clima litorâneo, como o uso de um piso em basalto orgânico, paredes com pinturas texturizadas na cor branca e mobiliário em madeira.
No volume superior, apoiado somente no sentido longitudinal do térreo, foram idealizados ambientes ainda mais introspectivos e aconchegantes. Revestido em madeira em sua face norte, a qual entra também para a circulação de acesso dos dormitórios, o bloco se destaca naturalmente do térreo. Nas extremidades, o espaço livre abre caminho para dois terraços verdes e uma área descoberta que dá vista para o mar de Guaecá.
















Localização
Guaecá, São Sebastião – SP
Início do projeto
2016
Entrega da obra
2018
Área construída
575,14m²
Autor
Gui Mattos
Arquiteto responsável
Riccardo Buso
Arquiteta responsável
Fernanda Denser
Equipe de arquitetura
André Delmanto
Tiago Mestre
Raquel Palmieri
Equipe de interiores
Lucas Damiani
Luciana Rangel
Paula Rimi
Fotos
Fran Parente
Paisagismo
Gil Fialho
Estrutura
Benedictis Engenharia
Gerenciador da obra
Thiago Pitta
Fundações
Combase
Climatização e Instalações
Grau Engenharia
Automação
GF Engenharia e iluminação
Impermeabilização
Proassp
Serralheria
Oficina do mar
Lareiras e Coifas
Pulsar
Telhado
ISOTectum
Mobiliário
Carlos Motta
Tora Brasil
Amazônia
BM Estudio
Dpot
Somma design